Beschrijving

Aan de rand van Didam, op een uitstekend bereikbare locatie op bedrijventerrein De Fluun 1 gelegen, bieden wij u te huur aan een multifunctionele bedrijfsruimte met kantoren, pantry, toiletgroep en buitenterrein. Het moderne bedrijfsobject heeft een verhuurbare vloeroppervlakte van totaal 582 m² waarvan 125 m²,  op de 1e verdieping.

Bedrijventerrein De Fluun I ligt strategisch, aan de Oostzijde van Didam doch nabij het centrum van Didam en binnen 1 kilometer van de op- en afrit van de A18 (Doetinchem) en nabij de aansluiting met de A12 (Arnhem) en de A3(Duitsland).Op het bedrijventerrein is een diversiteit aan ondernemingen gevestigd waaronder Alpha Deuren en Vink Kunststoffen. Didam beschikt over een NS station. 

INDELING: 

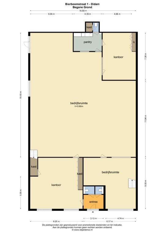
BEGANE GROND: Entree, hal, gescheiden toiletgroep, kantoorruimte (ca. 41 m²), bedrijfsruimte met overheaddeur, trapopgang, grote multifunctionele bedrijfshal (ca. 325 m²) met zij-entree, 2e kantoorruimte (ca. 34 m²) met vaste kasten, kantine met pantry, toilet.

EERSTE VERDIEPING: 2 bedrijfsruimten (totaal ca. 125 m²)

BIJZONDERHEDEN: bouwjaar 1982, totaal 582 m², frontbreedte ca. 17 m, vrije hoogte bedrijfshal 3.90 meter, volledig geïsoleerd, siergrindvloer, systeemplafonds met indirecte verlichting, kunststof kozijnen met HR beglazing, overheaddeur, HR combiketel 2005, heater 2024, toiletgroep, pantry met complete apparatuur, overheaddeur, bestemmingsplan Bedrijventerreinen Montferland, huidige bestemming bedrijven t/m categorie 3.2. Bijzonder geschikt voor productiebedrijven en groothandel functie.

HUURCONDITIES: 
Huurprijs € 2.950,= per maand;
Omzetbelasting (BTW) van toepassing;
Minimale huurperiode 5 jaar
Jaarlijkse index op basis van het CPI/CBS index;
Bankgarantie /waarborgsom in overleg nader te bepalen
Huurovereenkomst volgens Model ROZ (kantoorruimte en andere bedrijfsruimte);
Verhuur onder voorbehoud van goedkeuring eigenaar;
Aanvaarding z.s.m.

Kenmerken