Beschrijving

TE KOOP BESTAANDE COMMERCIËLE RUIMTE MET WERKPLAATS, STUDIO EN BOVENWONING, OOK GESCHIKT VOOR (HER)ONTWIKKELINGSMOGELIJKHEDEN!

Op één van de beste locaties aan de Wilhelminastraat midden in het centrum van Didam gelegen winkel/woonhuis. Welkom bij deze geweldige winkelruimte gelegen aan de Wilhelminastraat 30 in Didam. Dit historische pand uit 1910 biedt een unieke kans voor beleggers of ondernemers die op zoek zijn naar een veelzijdige locatie. Laat deze kans niet liggen om jouw ondernemersdromen waar te maken op deze toplocatie in Didam!

De Wilhelminastraat staat bekend als een levendige straat in Didam, waardoor je direct profiteert van goede zichtbaarheid en bereikbaarheid. Het bruisende centrum en de diversiteit aan lokale voorzieningen dragen bij aan de aantrekkelijkheid van deze locatie.

Deze winkelruimte beslaat een ruim perceel van 1008,00 m², waardoor er voldoende mogelijkheden zijn voor diverse inrichtingen en concepten. Met een energielabel A+ ben je ook nog eens milieubewust bezig, wat steeds belangrijker wordt in de hedendaagse samenleving. 
Of je nu een bestaande onderneming wilt uitbreiden of een nieuwe start wil maken, deze winkelruimte biedt een solide basis voor succes. De mix van historische charme en moderne voorzieningen zorgen voor een sfeervolle setting waar klanten graag zullen vertoeven.

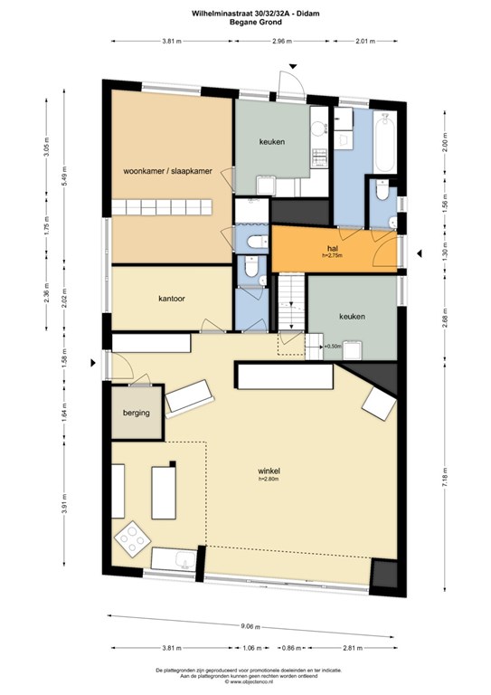
Het geheel (400 m² gebruiksoppervlakte) bestaat uit een winkel van 87 m², een studio met bovenwoning samen 127 m² en een achter het winkel/woonhuis gelegen bijgebouw van 152 m² (bestaande uit 77 m² begane grond en 75 m² verdieping).  Achter het bijgebouw is een magazijn/opslagruimte van 34 m2 gelegen en een groot parkeerterrein. Op de begane grond is tot voor kort Keurslagerij Patrick Teunissen gevestigd geweest.  Het geheel is gelegen op een perceel eigen grond van maar liefst 1008 m². De commerciële ruimte heeft een frontbreedte van ca. 9,5 meter en meet een oppervlakte inclusief werkplaats en magazijn van in totaal 273 m².  De werkplaats is bereikbaar via de inrit aan de linkerzijde. De winkelruimte wordt vrij van huur en gebruik opgeleverd, de bovenwoning en de studio zijn verhuurd. De bovenwoning beschikt over een eigen entree aan de rechterzijde en heeft een woonoppervlak van 94 m², de via de achterzijde bereikbare studio is 33 m² groot.

Het woon/winkelpand kan desgewenst verder uitgebreid worden maar is ook geschikt voor bijvoorbeeld herontwikkeling naar meerdere appartementen of studio's. 

Het huidige bestemmingsplan (Centrum Didam 2010) van de gemeente Montferland geeft bestemmingsmogelijkheden voor de begane grond voor de volgende categorieën: detailhandel, dienstverlening, horeca, kantoren en wonen (wonen op de verdieping ook toegestaan).

Het geheel is als volgt onderverdeeld:

Wilhelminastraat 30 Didam, commerciële ruimte: totale gebruiksoppervlakte 273 m², waarvan:
Commerciële ruimte 87 m², 
Indeling: entree, winkelruimte, berging, zij-entree, (spoel) keuken met meterkast, tussenhal met toegang tot toilet en kantoor.
Bijgebouw 152 m², waarvan begane grond (77 m²)  bestaande uit werkplaats met vriescel, koelcel en diverse bergingen en 1e verdieping (75 m²) zolderberging.
Achter de werkplaats is nog een opslag/magazijnruimte van 34 m² gelegen.

Wilhelminastraat 32 Didam, bovenwoning: totaal 94 m²
Begane grond: zij entree, hal, toilet, badkamer, trapopgang
1e Verdieping: overloop met toegang tot balkon, woonkamer, keuken, 2 slaapkamers, toilet, wasruimte

Wilhelminastraat 32A Didam, studio: totaal 33 m²
Begane grond: Achter entree, keuken, woon/slaapkamer, douche/toilet.

Aan de achterzijde van het object zijn op eigen terrein ruim voldoende parkeerplaatsen gesitueerd.  Daarnaast zijn er in de directe omgeving voldoende parkeerplaatsen gelegen. In het en rond het centrum van Didam kan gratis geparkeerd worden. 

De winkelruimte wordt opgeleverd vrij van huur en gebruik (schoon en ontruimd) met o.a. de volgende voorzieningen:

- Aluminium kozijnen
- Systeemplafond met verlichtingsarmaturen
- Toilet
- Krachtstroom 
- Pantry met wasruimte
- Werkplaats/magazijnruimte
- Winkelinventaris ter overname

Bijzonderheden:
Bouwjaar 1910
Perceeloppervlakte 1008 m² 
Verhuurbaar vloeroppervlak (VVO) totaal 400 m² 
Frontbreedte ca 9.5 meter 
Welstandsklasse B1 
Huurstroomindicatie studio en bovenwoning op aanvraag

Vraagprijs € 599.000,= K.K. 
Aanvaarding in overleg

Didam is centraal gelegen in de Liemers, de regio tussen Arnhem en Doetinchem. De gemeente Montferland telt ruim 35000 inwoners en maakt onderdeel uit van de Stadsregio Arnhem-Nijmegen. In Didam bevinden zich o.a. de HEMA, Scapino, Kruidvat, Blokker, specialistische detailhandel en diverse horecagelegenheden.
Wilhelminastraat 30, 32, 32A wachten op een nieuwe trotse eigenaar. Mis deze kans niet en maak van jouw onderneming een succesverhaal. Maak nu een afspraak en wie weet opent binnenkort jouw bedrijf hier zijn deuren!

Eventuele transacties dienen ter goedkeuring te worden voorgelegd aan opdrachtgever c.q. eigenaar van het object. Tot deze goedkeuring verleend is, zijn alle uitgebrachte aanbiedingen en/of voorstellen geheel vrijblijvend. Vastlegging koopovereenkomst model NVM, bankgarantie ter grootte van 10% van koopsom.

Kenmerken