Beschrijving

Vrijstaand wonen vlakbij het centrum van Didam!  

Zoek je een ruime vrijstaande woning met besloten tuin en grote garage, vlakbij het centrum van Didam? Lees dan meer over de Judostraat 7.
 
Deze woning is op traditionele wijze gebouwd in 1972 en verkeert in een uitstekende staat van onderhoud. De gebruiksoppervlakte van de woning is 138 m², met een inhoud van maar liefst 683 m3. Deze woning staat op een ruim perceel van 358 m² eigen grond. De woning is de afgelopen jaren keurig onderhouden en onder andere verduurzaamd met 12 zonnepanelen, gedeeltelijk voorzien van kunststof kozijnen en HR+/+ beglazing, waardoor de woning beschikt over een gunstig energielabel C.
 
Ruim en licht wonen
Op de begane grond vind je een lichte woonkamer met schuifpui, houtkachel en fraai uitzicht op de zonnige besloten tuin. Naast de hal ligt een recent vernieuwd toilet en verder op de begane grond de ruime keuken, een kelder voor opslag en bijkeuken. Via de hoofdwoning kom je in de ruime garage: de perfecte plek om te klussen, het stallen van motoren en meer.
 
Extra ruimte voor nu en in de toekomst
Aansluitend aan de garage vind je een multifunctionele ruimte. Bijvoorbeeld om een slaapkamer en badkamer te realiseren, wat gelijkvloers wonen mogelijk maakt. En heb je andere wensen? Dan is een ruim kantoor, praktijkruimte of studio ook op zijn plek. Eventuele bezoekers kunnen ook buiten langs de ruimte betreden.
 
Eerste verdieping met opbergmogelijkheden
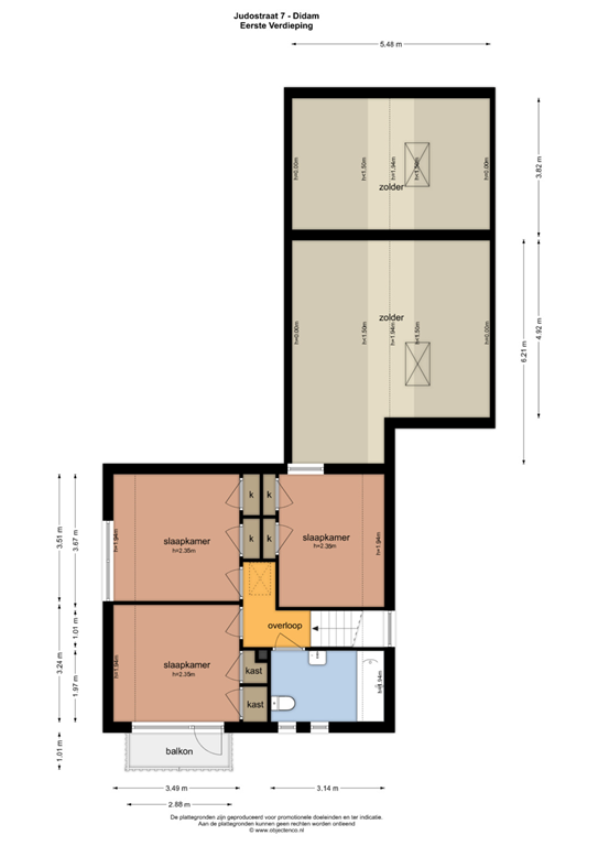
Op de eerste verdieping van de woning tref je 3 slaapkamers met inbouwkasten en een compleet ingerichte luxe badkamer. De badkamer heeft vloerverwarming, een ligbad, douche, dubbele wastafel en tweede toilet. Via deze verdieping heb je met een vlizotrap toegang tot een zolder met ruime opslagmogelijkheden.    
 
De ligging van de woning
Zoek je rust en ruimte? Deze woning heeft het, door de ligging in een doodlopende straat en ruim opgezette woonomgeving. En heb je iets nodig? Alle voorzieningen – van supermarkt tot treinstation – zijn op loopafstand te bereiken. De A12 bereik je eenvoudig en snel vanuit de woning.
 
Voorzieningen in Didam
De plaats Didam beschikt over veel voorzieningen, zoals een uitgebreid winkelaanbod, basisscholen, voortgezet onderwijs en een uitgebreid gezondheidscentrum. Verder vind je er diverse sportaccommodaties, zoals tennisbanen, voetbalvelden en fitnesscentra. De wandelaar haalt zijn hart op in de Montferlandse bossen.
 
Omgeving
Didam heeft uitstekende auto- en openbaarvervoerverbindingen naar onder andere Duitsland, Doetinchem, Zevenaar en Arnhem. De plaats heeft ongeveer 17.500 inwoners en maakt onderdeel uit van de gemeente Montferland. Montferland ligt in Oost-Nederland, direct tegen de Duitse grens. ’s-Heerenberg en Didam zijn de levendige centra van de gemeente Montferland, maar ook de kleine pittoreske dorpjes zijn zeker een bezoek waard. 

Grotere plaatsen in de omgeving zijn Doetinchem en Arnhem. De gemeente Montferland kenmerkt zich in een afwisselend landschap, mooie bossen en beschikt daarnaast over alle faciliteiten om lekker tot rust te komen. Naast de natuur kun je ook qua cultuur en historie is er genoeg te beleven in Montferland en omgeving. Niet voor niets is de slogan van de gemeente “Groen met karakter!.”
 
Benieuwd naar deze woning?
Deze woning bieden wij aan met een aantrekkelijke vanaf prijs. Bieden kan vanaf € 569.000,= K.K. 
Ieder voorstel boven de vermelde prijs zal serieus in overweging genomen worden!
 
Indeling
Begane grond: Entree, hal met trapopgang, toilet met fontein, ruime woonkamer met houtkachel en luxe glazen matzwarte stalen schuifdeur naar de wooneetkeuken. Hier vind je een hoek opgestelde inbouwkeuken met afzuigkap, gaskookplaat, koelkast en vaatwasser. Aansluitend aan de keuken bereik je een tussenhal met meterkast en achteringang. Vanuit de tussenhal kom je ook bij de kelderruimte, tuin, bijkeuken (met wasmachine aansluiting en cv-opstelling) en een ruime cv-verwarmde garage. De garage heeft een zolder met vlizotrap. De garage geeft daarnaast toegang tot de multifunctionele ruimte, welke ook voorzien is van vlizotrap naar een zolderberging. Deze multifunctionele ruimte is in te richten als slaapkamer met badkamer, speelkamer voor de (klein)kinderen, kantoor of praktijkruimte.

1e verdieping: Overloop met vlizotrap naar beloopbare zolderverdieping, 3 ruime slaapkamers met laminaatvloer en dubbele vaste kasten. De slaapkamer aan de voorzijde heeft een balkon. Verder op deze verdieping, de compleet ingerichte badkamer met dubbel wastafelmeubel, douche, ligbad, 2e toilet, elektrische vloerverwarming en designradiator.

2e verdieping: Geheel bevloerde zolderberging met stahoogte.
 
Bijzonderheden: Bouwjaar 1972, perceeloppervlakte 358 m², inhoud 683 m³, woonoppervlakte 138 m² , overig inpandige ruimte 44 m², NEN 2580 meetrapport beschikbaar, gedeeltelijk kunststof kozijnen met isolerende beglazing, Intergas HR combiketel (2021), gedeeltelijke gevelisolatie (2022), houtkachel (2022), schuifdeur woonkamer/keuken (2022), toilet beneden (2023), badkamer (2023) en 12 zonnepanelen (2023), energielabel C.
 
Aanvaarding in overleg

Bent u enthousiast geworden over deze prachtige woning aan de Judostraat 7? Bel ons dan snel voor een bezichtiging en wie weet bent u binnenkort de trotse eigenaar van deze heerlijke woning. We laten u graag alles zien wat deze woning te bieden heeft!
 
Deze informatie is met zorg door ons samengesteld. We aanvaarden geen aansprakelijkheid voor onvolledigheid, onjuistheid of de gevolgen hiervan. De opgegeven informatie is indicatief.

Interesse in dit huis? Schakel direct uw eigen NVM-aankoopmakelaar in. Uw NVM-aankoopmakelaar komt op voor uw belang en bespaart u tijd en zorgen. Adressen van collega NVM-aankoopmakelaars vindt u op Funda.

Kenmerken