Beschrijving

ENTHOUSIASTE ONDERNEMER GEZOCHT!

LET OP!  DE COMMERCIËLE RUIMTE WORDT IN VERHUURDE STAAT AANGEBODEN, DE WOONRUIMTE VRIJ TE AANVAARDEN!

Aan invalsweg, op uitstekende zicht locatie en nabij het centrum van Didam en NS station gelegen winkel/woonhuis bestaande uit een winkel/showroomruimte met werkplaatsruimte en een royale woning met garage.

Didam is centraal gelegen in de Liemers, de regio tussen Arnhem en Doetinchem. De gemeente Montferland telt ruim 35000 inwoners en maakt onderdeel uit van de Stadsregio Arnhem-Nijmegen.
In Didam bevinden zich o.a. de HEMA, Scapino, Kruidvat, Blokker, specialistische detailhandel en diverse horecagelegenheden. Het object heeft een gunstige ontsluiting op de rondweg alsmede de A18 richting Doetinchem en de A12 richting Arnhem en is gelegen direct naast het kantoorgebouw van KAB accountants.

Het totale verhuurbare vloeroppervlak bedraagt maar liefst 450 m² te weten.
Totale inhoud ca. 1485 m³

Het BEDRIJFSGEDEELTE (264 m² verhuurbaar vloeroppervlak) omvat:
een winkel/showroomruimte 105 m²
een werkplaatsruimte 90 m²
een multifunctionele ruimte op de eerste verdieping 69 m²

Het WOONHUIS GEDEELTE  (136 m² wonen) omvat:
een woonruimte 87 m²
een woonruimte op de eerste verdieping 49 m²
Het aangebouwde bijgebouw betreft:
een garage 50 m²

INDELING BEDRIJFSGEDEELTE:
BEGANE GROND: Entree, winkel/showroomruimte met visgraad pvc-vloer, radiatoren, toilet v.v. wandcloset met fontein, aangrenzende werkplaatsruimte met openslaande deuren en betonvloer voorzien van vloerverwarming, trapopgang naar

EERSTE VERDIEPING: Multifunctionele ruimte

INDELING WOONHUIS:
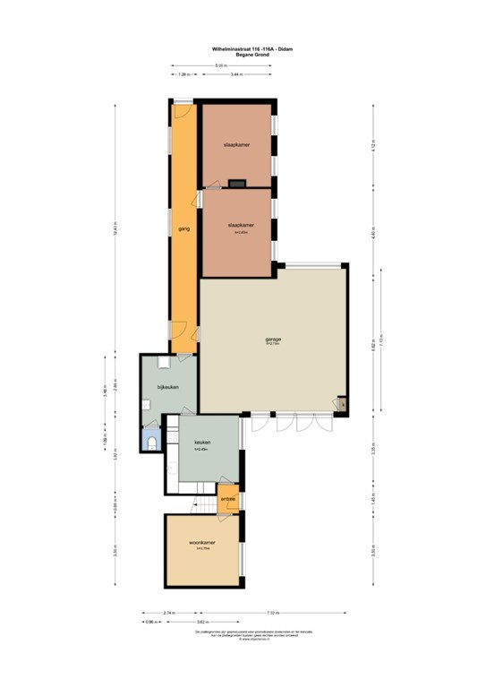
BEGANE GROND: Entree, hal, trapopgang, woonkamer, keuken, bijkeuken toilet, gang, 2 slaapkamers en doorgang naar garage.

EERSTE VERDIEPING: Overloop, 5 slaapkamers, badkamer.

BIJZONDERHEDEN:
Bouwjaar 1930, uitbreiding 1980
Perceeloppervlakte 748 m²
Verhuurbaar vloeroppervlak (VVO) totaal 450 m²
Frontbreedte ca 11 meter
Welstandsklasse B2
Huurstroomindicatie op aanvraag

Vraagprijs € 529.000,= K.K.
Aanvaarding in overleg.

Eventuele transacties dienen ter goedkeuring te worden voorgelegd aan opdrachtgever c.q. eigenaar van het object.
Tot deze goedkeuring verleend is, zijn alle uitgebrachte aanbiedingen en/of voorstellen geheel vrijblijvend.
Vastlegging koopovereenkomst model NVM, bankgarantie ter grootte van 10% van koopsom.

Kenmerken