Beschrijving

WEGENS OVERWELDIGENDE BELANGSTELING PLANNEN WIJ GEEN BEZICHTIGINGEN MEER IN . 
U KUNT ZICH PER E-MAIL AANMELDEN VOOR DE RESERVELIJST!

n rustige woonomgeving nabij het centrum van Rheden gelegen goed onderhouden over de volle breedte uitgebouwde middenwoning met berging en 35 meter diepe achtertuin Deze achtertuin is voorzien van een extra terras en een grote 2e tuinberging (15 m²). Deze woning is gebouwd in 1963, meet een woonoppervlakte van 86 m²  en is gelegen op een perceel eigen grond van maar liefst 302 m².

Rheden is gunstig gelegen ten opzichte van de prachtige bossen van de Veluwezoom-Postbank.
De plaats Rheden heeft vele voorzieningen te bieden. Zo zijn er in de Groenestraat van Rheden voldoende winkels en supermarkten aanwezig, ook bevinden zich in het dorp basisscholen, sportfaciliteiten en een NS station. Binnen een paar minuten zit u op de snelweg richting Arnhem/Utrecht/Apeldoorn. Ook is er een veerpont naar het watersportgebied 'Rhederlaag'

Bieden vanaf prijs € 325.000,= K.K.
Deze woning wordt u aangeboden met een aantrekkelijke bieden vanaf prijs.
Ieder voorstel boven de vanaf prijs zal door verkoper in overweging worden genomen.

INDELING:
BEGANE GROND:
Entree, hal met meterkast, toilet voorzien van wandcloset met fontein, trapopgang, half open keuken voorzien van lichte inbouwkeuken met gaskookplaat, afzuigkap, koel/vriescombinatie en close-in boiler, royale uitgebouwde woonkamer met massief houten vloerdelen, sfeerhaard en openslaande deuren naar tuin, bijkeuken/wasruimte met witgoedaansluitingen en toegang tot de tuin.
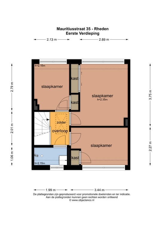
1E VERDIEPING:
Overloop, 3 slaapkamers met laminaatvloer en voorzien van vaste kasten,  geheel betegelde badkamer voorzien van douche, wastafelmeubel en design radiator, vlizotrap naar
2E VERDIEPING:
Geheel bevloerde zolderberging met cv-opstelling.

BIJZONDERHEDEN:
Bouwjaar 1963
Nefit HR combiketel 2008, onderhoud 2025
Gedeeltelijk hardhouten kozijnen
Buitenschilderwerk 2024
Diverse rolluiken en buitenzonwering
Grotendeels voorzien van isolerende beglazing
Gedeeltelijk voorzien van gevelisolatie
Uitbouw voorzien van dakisolatie

Aanvaarding in overleg.

Rheden is een zelfstandige gemeente met alle voorzieningen, gelegen op een prachtige locatie precies tussen de Veluwe en de IJsselvallei. Mensen die houden van het buitenleven en wandelen, fietsen, paardrijden of hardlopen kunnen hier hun hart ophalen. Arnhem is met de bus, trein, auto of fiets snel bereikbaar. Het openbaar vervoer is prima geregeld en de snelwegen in de regio zijn gunstig te bereiken.

Sportaccommodaties als tennis, zwemmen en voetbal zijn gelegen op loopafstand. Rheden ligt aan de voet van het Nationaal Park Veluwezoom. Vanuit Rheden kunt u binnen een paar minuten genieten van de Postbank, uitgestrekte bossen en heidevelden. Liever op het water? Recreatiegebied Rhederlaag aan de overkant van de IJssel is per fietsveer vlot te bereiken, hier vindt u diverse jachthavens, strandjes en eetgelegenheden. Bovendien rijdt u met de auto of trein binnen 10 minuten naar Arnhem!

“Interesse in dit huis? Schakel direct uw eigen NVM-aankoopmakelaar in. Uw NVM-aankoopmakelaar komt op voor uw belang en bespaart u tijd en zorgen. Adressen van collega NVM-aankoopmakelaars vindt u op Funda.”

Kenmerken