Beschrijving

Fraai aan de rand van de wijk Zonnemaat, in ruim opgezette woonomgeving nabij wandelpark met kinderboerderij Rosorum gelegen, royale middenwoning met aangebouwde bijkeuken en geheel besloten keurig aangelegde besloten tuin met tuinberging en achterom. De woning is gebouwd in 1970, beschikt over een woonoppervlakte van maar liefst 129 m2, meet een comfortabele inhoud van 450 m3 en staat gesitueerd op een perceel van 163 m2 eigen grond. De woning is de laatste jaren geheel gemoderniseerd en beschikt over een gunstig energielabel B.

De wijk Zonnemaat is met haar centrale ligging een geliefde woonwijk in Zevenaar. Zonnemaat is voorzien van diverse scholen en een buurtsupermarkt. Het op enkele fiets minuten afstand gelegen gezellige en levendige stadscentrum van Zevenaar biedt een breed scala aan winkels en tal van leuke restaurants en overige horeca. Ook beschikt Zevenaar over een theater en een filmhuis. De ontsluitingswegen A12 (Arnhem), A18 (Doetinchem) en de A3 (Duitsland) bereikt u binnen enkele autominuten. 

Bieden vanaf prijs € 365.000,- = K.K. 
Deze woning wordt u aangeboden met een aantrekkelijke vanaf prijs. 
Ieder voorstel boven de vermelde vanaf prijs zal serieus in overweging genomen worden!

INDELING:
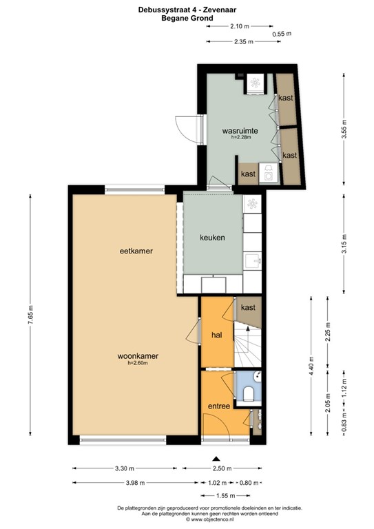
BEGANE GROND:
Entree, hal met meterkast, luxe toilet voorzien van wandcloset met fontein, trapopgang, trapkast, sfeervolle woonkamer met laminaatvloer, half open keuken voorzien van moderne hoek opgestelde inbouwkeuken met afzuigkap, inductie kookplaat, 
combimagnetron, oven, koelkast/vriescombinatie en vaatwasser, toegang tot praktische bijkeuken met wasmachine aansluiting en doorgang naar tuin.   
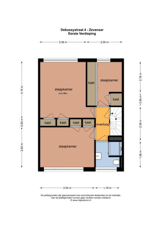
1E VERDIEPING:
Overloop, 3 ruime slaapkamers met laminaatvloer en vaste kasten, gemoderniseerde badkamer met inloopdouche met regendouche, wastafelmeubel, designradiator, 2e wandcloset, vaste trap naar
2E VERDIEPING:
Voorzolder met cv-opstelling, royale 4e slaapkamer met dakkapel en 5e slaapkamer met Velux dakraam. 

BIJZONDERHEDEN: Bouwjaar: 1970, perceeloppervlakte 163 m2, woonoppervlakte
129 m2, externe bergruimte 8 m2, inhoud 450 m3, NEN 2580 meetrapport beschikbaar, Energielabel B, Intergas HRE CW5 combiketel november 2023, begane grond HR +/+ beglazing 2024/2025, verdieping isolerende beglazing, dak- en vloerisolatie,- mechanische ventilatie, 15 zonnepanelen,  geïsoleerde bijkeuken (2024), nieuwe groepenkast 2023, inbouwkeuken 2023, 2e verdieping voorzien van kunststof dakkapel, diverse rolluiken, stucwerk begane grond 2024!

Bieden vanaf prijs € 365.000,= K.K.

Aanvaarding in overleg

Zevenaar is een actieve gemeente en heeft reeds 525 jaar stadsrechten. De stad heeft een groot aantal bezienswaardigheden. Er zijn veel scholen, voor zowel basis- als voortgezet onderwijs, verschillende sportaccommodaties en er is een rijk verenigingsleven. In het gezellige centrum vinden jaarlijks tal van activiteiten plaats, waaronder een Jazzfestival. Er is dan ook een uitgebreid uitgaansleven met onder meer veel horeca, een theater en een filmhuis. Het aanbod aan maatschappelijke, culturele en sportieve activiteiten is groot. Zevenaar heeft een NS Station en ook de overige openbaarvervoervoorzieningen zijn uitstekend. Bovendien ligt Zevenaar in een groene, waterrijke omgeving. De uiterwaarden van de oude Rijn, diverse zwem-, schaats- en viskolken, de mooie Ooysedijk. Wie van het buitenleven houdt komt in deze omgeving zeker aan zijn trekken. Arnhem en Doetinchem zijn binnen de 20 minuten bereikbaar. 

Interesse: schakel direct uw eigen NVM-aankoopmakelaar in. Uw NVM-aankoopmakelaar komt op voor uw belang en bespaart u tijd en zorgen. Adressen van collega NVM-aankoopmakelaars vindt u op Funda.”

Kenmerken