Beschrijving

Welkom op het Oosteinde 32C Zevenaar!

Een royaal uitgebouwd vrijstaand woonhuis op een prettige locatie dichtbij het centrum.

Op fijne locatie, op korte afstand van het gezellige stadscentrum van Zevenaar gelegen, uitgebouwd vrijstaand woonhuis met aangebouwde garage, berging, eigen oprit voor meerdere auto's en een geheel besloten tuin op het Zuiden voorzien van groot zonneterras. 

De woning is gunstig gelegen met uitzicht op groen. Het sfeervolle stadscentrum van Zevenaar beschikt o.a. 
over een theater, filmhuis, een breed scala aan winkels, gevarieerde horeca, scholen en een  NS station. 
De uitvalswegen richting Arnhem (A12), Oberhausen (A3) en Doetinchem (A18) bereik je binnen een aantal autominuten.

Dit vrijstaande woonhuis is gebouwd in 1966 en is over de gehele breedte uitgebouwd. Hierdoor meet de woning een totale inhoud van 567 m³ en is er een comfortabele woonoppervlakte van maar liefst151 m² ontstaan. 
Het geheel is gelegen op een perceel eigen grond van 407 m². Deze woning is de laatste jaren nagenoeg geheel gemoderniseerd en gerenoveerd. 

Deze woning wordt aangeboden met een aantrekkelijke bieden vanaf prijs van 
€ 575.000,= K.K.

Ieder voorstel boven genoemde vanaf prijs wordt door verkoper serieus in overweging genomen.

INDELING:
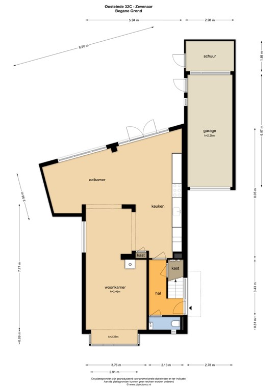
BEGANE GROND: 
Overdekte entree, hal met trapopgang, toilet voorzien van wandcloset met fontein, verdiepte kelderkast met meterkast, royale uitgebouwde woonkamer met erker uitbouw, visgraad pvc vloer met vloerverwarming, open keuken voorzien van inbouwkeuken met afzuigkap, inductiekookplaat, heteluchtoven, vaatwasser, koelkast, 
close-in boiler en granieten werkblad, openslaande deuren naar tuin.

1E VERDIEPING: 
Overloop met vaste kast, 3 slaapkamers waarvan ouderslaapkamer met balkon, badkamer voorzien van douche, ligbad, vaste wastafel en 2e toilet, vaste trap naar

2E VERDIEPING: 
Voorzolder met cv-opstelling, bergruimte, ruime 4e slaapkamer met dubbele dakkapel. 

BIJZONDERHEDEN: 
Bouwjaar 1966, perceeloppervlakte 407 m², inhoud 567 m³, woonoppervlakte 151 m², overig inpandige ruimte 19 m²,  NEN 2580 meetrapport beschikbaar, geheel voorzien van kunststof kozijnen met HR+ en ++ beglazing, 2 aluminium kozijnen, dakisolaite, muur,- en vloerisolatie 2021,  nieuwe groepenkast, Nefit HR combiketel 2011 onderhoud 2026, Energielabel E is van voor de naïsolatie/verduurzaming,  glasvezelaansluiting, diverse (elektrische)  rolluiken, 1 airco begane grond, 1 airco 2e verdieping beide met Inverter functie, begane grond vloer voorzien van visgraad pvc vloer met vloerverwarming, 1e en 2e verdieping voorzien van laminaatvloer, inbouwkeuken 2021, bitumen garage 2024, bitumen dakkapellen 2022, nieuwe dakpannen 2026.

Bieden vanaf prijs € 575.000,= K.K.

Aanvaarding in overleg

Zevenaar is een actieve gemeente en heeft reeds 525 jaar stadsrechten. De stad heeft een groot aantal bezienswaardigheden. Er zijn veel scholen, voor zowel basis- als voortgezet onderwijs, verschillende sportaccommodaties en er is een rijk verenigingsleven. In het gezellige centrum vinden jaarlijks tal van activiteiten plaats, waaronder een Jazzfestival. Er is dan ook een uitgebreid uitgaansleven met onder meer veel horeca, een theater en een filmhuis. Het aanbod aan maatschappelijke, culturele en sportieve activiteiten is groot. Zevenaar heeft een NS Station en ook de overige openbaarvervoervoorzieningen zijn uitstekend. Bovendien ligt Zevenaar in een groene, waterrijke omgeving. De uiterwaarden van de oude Rijn, diverse zwem-, schaats- en viskolken, de mooie Ooysedijk. Wie van het buitenleven houdt komt in deze omgeving zeker aan zijn trekken. Arnhem en Doetinchem zijn binnen 20 minuten bereikbaar.

“Interesse in deze woning? Schakel direct uw eigen NVM-aankoopmakelaar in. Uw NVM-aankoopmakelaar komt op voor uw belang en bespaart u tijd en zorgen. Adressen van collega NVM-aankoopmakelaars vindt u op Funda.”

Kenmerken