Beschrijving

In ruim opgezette woonomgeving, gunstig nabij het centrum van Zevenaar gelegen middenwoning met berging en geheel besloten 17 meter diepe en zonnige tuin op het Oosten. Deze woning is geheel op traditionele wijze gebouwd in 1959, meet een woonoppervlakte van 98 m2, heeft een inhoud van 320 m3 en is gelegen op een perceel eigen grond van maar liefst 175 m2. De woning is casco goed onderhouden maar dient gemoderniseerd te worden naar de wensen van deze tijd, kortom een mooie kans om deze woning geheel naar eigen smaak op te knappen! 
  
De woning is prettig gesitueerd ten opzichte van het sfeervolle stadscentrum van Zevenaar met o.a. een filmhuis, theater, uitgebreid winkelaanbod en voldoende horeca. Een buurtsuper, scholen en openbaar vervoer liggen in de directe omgeving. De uitvalswegen richting Arnhem (A12), Doetinchem (A18) en Duitsland (A3) bereikt u binnen enkele autominuten.

Bieden vanaf prijs € 298.000,= K.K.

Deze woning wordt u aangeboden met een aantrekkelijke vanaf prijs. 
Ieder voorstel boven de vermelde vanaf prijs zal serieus in overweging genomen worden! 

Let op: In de gestelde bieden vanaf prijs is reeds rekening gehouden met het feit dat de woning gemoderniseerd moeten worden. Een aanpassing kan nu mogelijk naar eigen inzicht, smaak en op financieel verantwoorde wijze plaatsvinden.

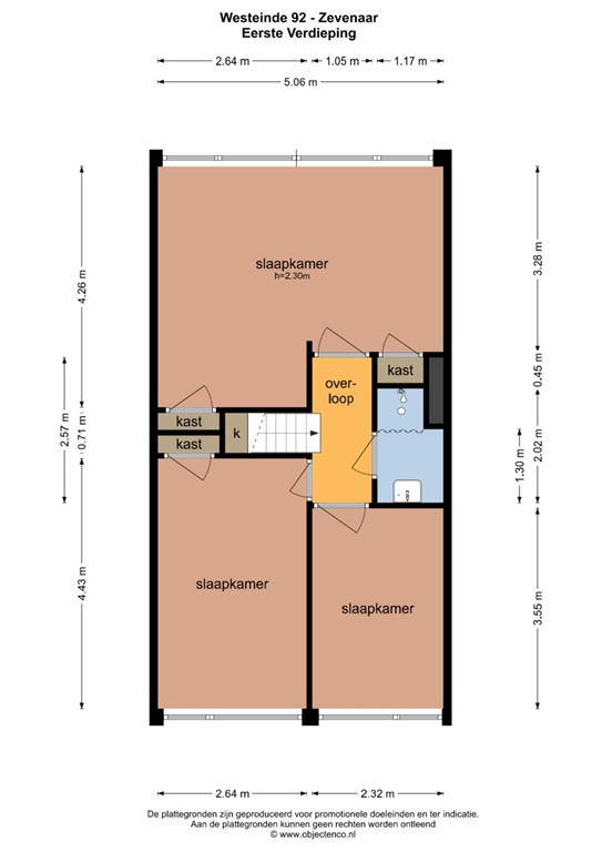
INDELING:
BEGANE GROND: Entree, hal met meterkast, trapopgang, toilet met fontein, kelderkast, woonkamer met aangrenzend eetkamer en keuken voorzien van basiskeukenopstelling met toegang tot diepe en vrije achtertuin met stenen berging en achterom.
1E VERDIEPING: Overloop, royale ouderslaapkamer met vaste kast (voorheen 2 slaapkamers en desgewenst weer eenvoudig terug te brengen in de oorspronkelijke situatie), cv-kast, badkamer met inloopdouche en vaste wastafel, ruime 2e en 
3e slaapkamer.  

BIJZONDERHEDEN: Bouwjaar 1959, perceeloppervlakte 175 m2, woonoppervlakte 
98 m2, externe bergruimte 10 m2, inhoud m3, NEN 2580 meetrapport beschikbaar, energielabel D, HR combiketel 2007 (huurtoestel), in de koopakte zal een clausule "as is where is" worden opgenomen.

Bieden vanaf prijs € 298.000,= k.k.

Aanvaarding in overleg

Zevenaar is een actieve gemeente en heeft reeds 525 jaar stadsrechten. De stad heeft een groot aantal bezienswaardigheden. Er zijn veel scholen, voor zowel basis- als voortgezet onderwijs, verschillende sportaccommodaties en er is een rijk verenigingsleven. In het gezellige centrum vinden jaarlijks tal van activiteiten plaats, waaronder een Jazzfestival. Er is dan ook een uitgebreid uitgaansleven met onder meer veel horeca, een theater en een filmhuis. Het aanbod aan maatschappelijke, culturele en sportieve activiteiten is groot. Zevenaar heeft een NS Station en ook de overige openbaarvervoervoorzieningen zijn uitstekend. Bovendien ligt Zevenaar in een groene, waterrijke omgeving. De uiterwaarden van de oude Rijn, diverse zwem-, schaats- en viskolken, de mooie Ooysedijk. Wie van het buitenleven houdt komt in deze omgeving zeker aan zijn trekken. Arnhem en Doetinchem zijn binnen 20 minuten bereikbaar.

“Interesse in dit appartement? Schakel direct uw eigen NVM-aankoopmakelaar in. Uw NVM-aankoopmakelaar komt op voor uw belang en bespaart u tijd en zorgen. Adressen van collega NVM-aankoopmakelaars vindt u op Funda.”

Kenmerken