Beschrijving
DIRECT VERKOCHT AAN ÉÉN ONZER RELATIES!
WILT U OOK IN AANMERKING KOMEN VOOR EEN VERGELIJKBARE WONING SCHRIJFT U ZICH DAN BIJ ONS IN!
In ruim opgezette woonomgeving gelegen, goed onderhouden hoekwoning met aangebouwde garage en circa 10 meter diepe achtertuin. Deze woning is gebouwd in 1989, heeft een comfortabele woonoppervlakte van 110 m2 (totale inhoud inclusief garage 435 m3) en is gelegen op een perceel eigen grond van circa 230 m2. De inbouwkeuken, de badkamer en het toilet zijn enkele jaren geleden vernieuwd. Deze woning is recentelijk geheel voorzien van nieuwe laminaatvloeren en is geheel in moderne kleurstellingen uitgevoerd en dus direct instap klaar.
Het NS station en het centrum van Didam met vele voorzieningen bevinden zich op enkele minuten loop- of fietsafstand. Didam beschikt over zeer veel eigen voorzieningen zoals een uitgebreid winkelaanbod, basisscholen en voortgezet onderwijs, tevens zijn er diverse sportaccommodaties voorhanden zoals tennisbanen, voetbalvelden en fitnesscentra. De woning is gunstig gesitueerd ten opzichte van de ontsluitingswegen A18 (Doetinchem), A12 (Arnhem) en de A3 (Duitsland).
BEGANE GROND: Entree, hal met trapopgang, meterkast, luxe toilet voorzien van wandcloset met fontein, tuingerichte woonkamer met trapkast, half open keuken voorzien van moderne hoek opgestelde inbouwkeuken met complete inrichting
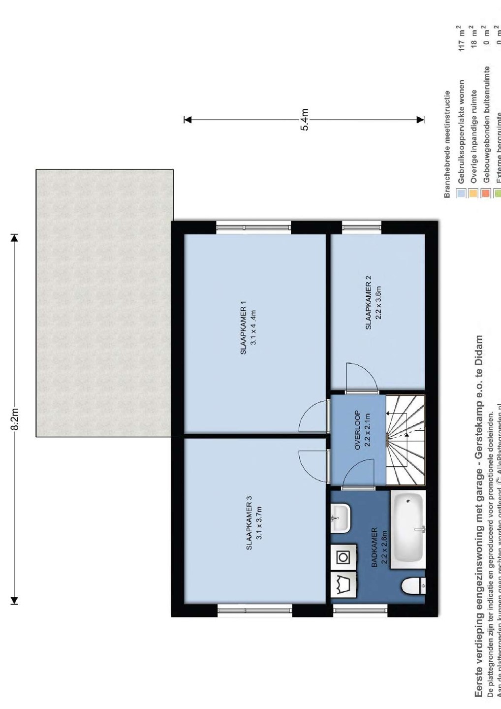
1E VERDIEPING: Overloop, 3 slaapkamers, moderne badkamer voorzien van douche, vaste wastafel en 2e wandcloset, vaste trap naar
2E VERDIEPING: Voorzolder met cv-opstelling, zolderkamer (mogelijkheid 4e slaapkamer).
BIJZONDERHEDEN: Bouwjaar 1989, inhoud 435 m³ incl. garage, perceeloppervlakte ca.
230 m², gebruiksoppervlakte wonen 110 m², geheel voorzien van hardhouten kozijnen met isolerende beglazing, dak-, muur,- en vloerisolatie, AWB HR combiketel, moderne inbouwkeuken, badkamer en toilet, geheel voorzien van nieuwe laminaatvloeren 2021, binnen schilderwerk 2021.
Belangstelling? Schrijft u zich vrijblijvend in.
Uw nieuwe woning is gelegen in een rustige woonomgeving nabij het centrum van Didam. Er zijn uitstekende autoverbindingen en openbaar vervoerverbindingen naar o.a. Duitsland, Doetinchem, Zevenaar en Arnhem. Didam is een plaats met ongeveer 16.500 inwoners. Het maakt onderdeel uit van de gemeente Montferland. De gemeente Montferland ligt in Oost Nederland, direct tegen de Duitse grens. ’s-Heerenberg en Didam zijn de levendige centra van de gemeente Montferland, maar ook de kleine pittoreske dorpjes zijn zeker een bezoek waard. Grotere plaatsen in de omgeving zijn Doetinchem en Arnhem. De gemeente Montferland kenmerkt zich in een afwisselend landschap, mooie bossen en beschikt daarnaast over alle faciliteiten om lekker tot rust te komen. Naast de natuur kunt u ook qua cultuur en historie uw hart ophalen in Montferland en omgeving. Niet voor niets is de slogan van de gemeente “Groen met karakter!”.
Deze informatie geldt als vrijblijvend aanbod, er kunnen geen rechten worden ontleend aan de informatie.